Sold

Displaying: of 19

Agent Details

Tony ONeill

Share

Solid, Secure, Affordable.

Sold for $340,000

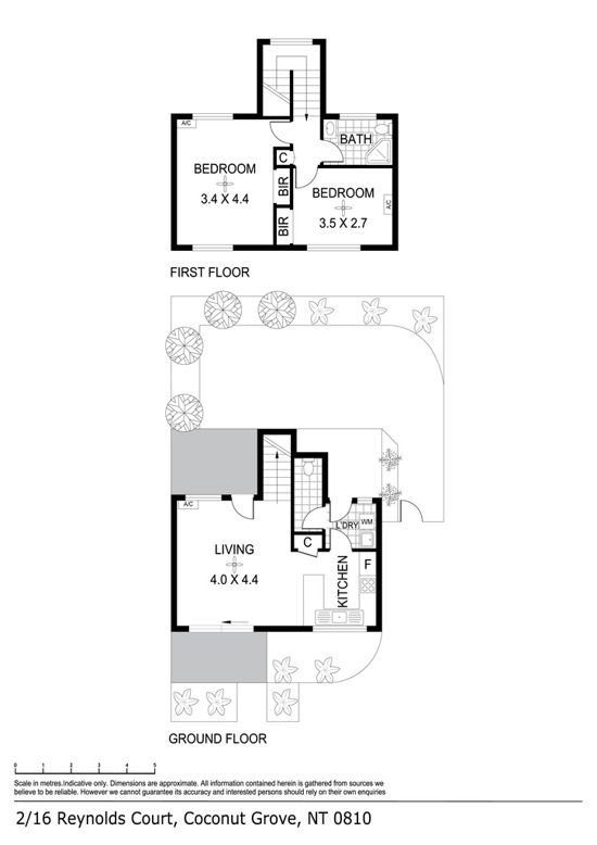
2/16 Reynolds Court, Coconut Grove

2
1
1

Profile

They don't build them like this anymore!

Set in a small complex of just 4 townhouses.

Here is your opportunity to get into the housing market - as a home owner or small investor - at a very affordable price point in the Darwin market.

With fresh paint throughout and a sparkling new bathroom, so much has been done to make this a walk-in proposition for you.

Consider these points -
* Rear townhouse in a small complex of 4 units
* Extremely solid build - brick and block walls on both levels
* Townhouse design - two levels with internal stairs
* Living area and kitchen at ground level, bedrooms upstairs
* Second toilet located downstairs
* Good-sized functional kitchen
* Laundry/storeroom plus toilet
* Large windows provide great crossflow ventilation & natural light
* The new stair treads create a modern, clean look
* Tiled and air-conditioned downstairs
* Huge main bedroom upstairs - with robes and split a/c
* Second bedroom with robes and split a/c
* Brand new bathroom with shower (glass screen enclosure)
* Fresh paint throughout
* New ceiling fans installed
* Small rear patio opens to the fenced rear yard
* Yard has paving/gravel deck and edged garden areas
* Solar hotwater heater on the roof
* One designated car park plus a number of visitors car parks
* Darwin City Council rates approx. 1 458 p.a
* Strata Fees approx. $887 p.q

This neat and tidy unit is move-in ready - and priced to sell now.

Located within walking distance of Nightcliff shops with a Woolworths store and much more.

Local schools and the foreshore are also convenient to the property.



Features

21517100
Property ID
2
Bedrooms
1
Bathrooms
1
Garage

Send Enquiry

Your Details
Your Enquiry
  1. Please describe how we can be of assistance to you.

  2.  

    Would you like to join our mail list?

Submit