Sold

Displaying: of 11

Agent Details

Tony ONeill

Share

Under Contract - Excellent Open-Plan Living... Leased to DHA

Sold

Lyons

4
2
2

Profile

A home built for Top End living!

Collect the rent now and move in later.

Big, wide-open living and family areas opening to a generous verandah space for outdoor dining/entertaining.

Ideal for a young, active family - so move in when the DHA vacate, or profit from leasing to a new family in the future.

The property features -
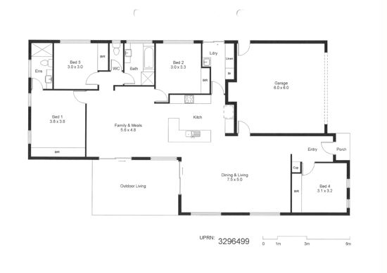
* 4 generous-sized bedrooms
* Main bedroom has an ensuite bathroom
* All 4 bedrooms have tiled floors and built-in robes
* The living area adjoins the rear verandah
* The family room also opens to the verandah
* The large and well-appointed kitchen features a pantry and overhead storage
* The home is fully air-conditioned by split-system units
* Double lock-up garage with storage space and internal access
* Generous 633sqm lot with room for kids to play
* Side parking bay for boat, trailer or caravan
* In an excellent street of quality homes
* Walk to the nearby Primary and Middle Schools
* Casuarina Square, Hospital and University all closeby

DHA Lease Summary
Lease edition: Edition 6B
Lease end date: 1st July 2022
Current Rent For 2020: $700 per week

DHA Lease Options and Variations
Lease option: 3-year lease option period (at DHA discretion)
Right to vary: 1 x up to 12 months Reduction/Extension in the lease term

Note: The right to vary the term of the lease is at DHA's discretion.

* DHA guarantee to pay the rent even if the property is vacant.
* DHA Property Care, an all-inclusive service fee, covers a range of property-related services.
* The property is cleaned at the end of each tenancy period.
* The lessor may also be entitled to a lease-end make-good (refer to the DHA Lease Agreement)
* A rental floor may apply to the DHA Lease Agreement (applicable to specific lease editions and
applies to commencement rent).

Investing with DHA - This property is for sale on behalf of a DHA lessor and has a DHA (Defence Housing Australia) lease in place.
Visit dha.gov.au to learn about the benefits of investing in DHA property.

DHA regulations mean that this property will be available for private inspection only and to prequalified buyers only.

The rent displayed is the 2020 rental figure, please note, Photos are supplied under agreement by DHA and are for illustration purposes only.



Features

20438913
Property ID
4
Bedrooms
2
Bathrooms
2
Garage
633 sqm approx.
Land Size
231 sqm approx.
Building Size

Send Enquiry

Your Details
Your Enquiry
  1. Please describe how we can be of assistance to you.

  2.  

    Would you like to join our mail list?

Submit